1. Änderung des Bebauungsplans Nr. 20 „Berkhofer Weg II“; öffentliche Auslegung gem. § 3 Abs. 2 Baugesetzbuch (BauGB)

Der Rat der Gemeinde Buchholz (Aller) hat in seiner Sitzung am 29.03.2017 dem Entwurf der 1. Änderung des Bebauungsplans Nr. 20 „Berkhofer Weg II“ mit örtlicher Bauvorschrift und der Begründung zugestimmt und die öffentliche Auslegung gem. § 3 Abs. 2 BauGB beschlossen.

Die 1. Änderung des Bebauungsplans Nr. 20 „Berkhofer Weg II“ wird im vereinfachten Verfahren nach § 13 BauGB aufgestellt. Von einer Umweltprüfung nach § 2 Abs. 4 BauGB wird abgesehen.

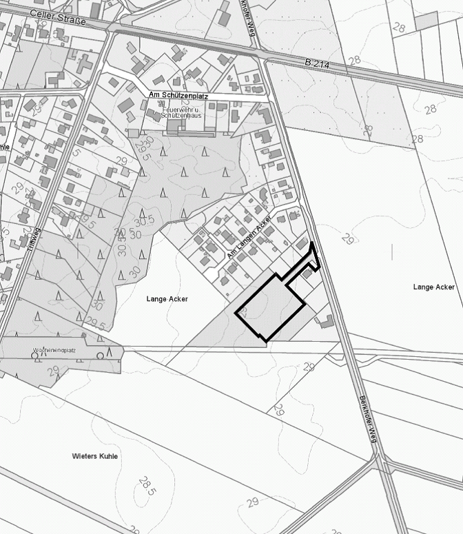
Der räumliche Geltungsbereich der 1. Änderung des Bebauungsplans Nr. 20 „Berkhofer Weg II“ liegt im Ortsteil Marklendorf südlich der B 214 und östlich der Straße Berkhofer Weg im Anschluss an das Baugebiet „Am Langen Acker“. Die Grenze des räumlichen Geltungsbereichs ist im folgenden Kartenausschnitt verdeutlicht:

Die öffentliche Auslegung des Entwurfs der 1. Änderung des Bebauungsplans Nr. 20 „Berkhofer Weg II“ mit örtlicher Bauvorschrift und der Begründung gem. § 3 Abs. 2 BauGB erfolgt von Dienstag, den 18. April 2017, bis einschließlich Donnerstag, den 18.  Mai 2017, in der Gemeindeverwaltung im Rathaus (Zimmer 36) in Schwarmstedt, Am Markt 1, während folgender Zeiten:

Montag bis Freitag: 8.30 bis 12.00 Uhr

Donnerstag: außerdem 14.00 bis 18.00 Uhr

und nach telefonischer Vereinbarung (Tel.: 0 50 71 / 8 09 - 36) auch zu anderen Zeiten.

Während der öffentlichen Auslegung können Stellungnahmen zum Entwurf der 1. Änderung Bebauungsplans Nr. 20 „Berkhofer Weg II“ mit örtlicher Bauvorschrift  und der Begründung schriftlich oder mündlich zur Niederschrift bei der Gemeinde Buchholz (Aller) abgeben.

Hinweise:

Nicht fristgerecht abgegebene Stellungnahmen können bei der Beschlussfassung über die 1. Änderung und Ergänzung des Bebau­ungsplans Nr. 21 „Schwarzer Berg“ unberücksichtigt bleiben.

Ein Antrag nach § 47 der Verwaltungsgerichtsordnung (Normen­kontrolle) ist unzulässig, soweit mit ihm Einwendungen geltend gemacht werden, die vom Antragsteller im Rahmen der Auslegung nicht oder verspätet geltend gemacht wurden, aber hätten geltend gemacht werden können.

Schwarmstedt,  den  04.04.2017                                                                       

GEMEINDE BUCHHOLZ (ALLER)
Der Gemeindedirektor
gez. Gehrs

   
17.04.2026

hallenbadschliessung-am-21-04-2026-ab-15-00-uhrAus personellen Gründen muss das Hallenbad am

mehr...

14.04.2026

bekanntmachung-gilten-2026-04-ratDie nächste Sitzung des Rates der Gemeinde Gilten findet am 22.04.2026, um 20:00 Uhr, in 29690 Gilten, OT Nienhagen, Dorfgemeinschaftshaus, Rodewalder Straße 7 A, statt.

mehr...

09.04.2026

bekanntmachung-buchholz-2026-04-ratDie nächste Sitzung des Rates der Gemeinde Buchholz (Aller), als Wegebegehung, findet am 29.04.2026, um 17:00 Uhr, statt. Treffpunkt: 29690 Buchholz (Aller) OT Marklendorf, Dorfgemeinschaftshaus.

mehr...

02.04.2026

bekanntmachung-lindwedel-2026-04-rDie nächste Sitzung des Bau- und Wegeausschusses, als Wegebegehung, der Gemeinde Lindwedel, findet am 13.04.2026, um 15:00 Uhr, statt. Treffpunkt: Feuerwehrhaus Lindwedel.

mehr...

31.03.2026

aktuelles-2026-04-minigolfAm Mittwoch, 01. April 2026 startet die Minigolfanlage in die neue Saison.

mehr...

30.03.2026

aktuelles-2026-04-sprechstunde-formularlo Die Formularlotsen sind im April 2026 mit persönlichen Beratungsgesprächen unter vorheriger Terminvereinbarung für Sie da.

mehr...

25.03.2026

strassensperrung-2026-03-b214Die Arbeiten an der Leinebrücke bei Schwarmstedt im Zuge der Bundesstraße 214 gehen in die Endphase. Doch bevor der Verkehr über das neue Bauwerk geführt werden kann, sind auf den benachbarten Behelfsbrücken zusätzliche Maßnahmen für den Artenschutz erforderlich. Damit in den Hohlräumen der oberen Stahlträger nicht die streng geschützte Rauchschwalbe nistet und brütet, müssen diese abgehängt werden.

mehr...

23.03.2026

aktuelles-2026-03-ehrenaSchwarmstedt.  Das Interesse war riesig: Über 70 engagierte Ehrenamtliche aus dem gesamten Samtgemeindegebiet kamen letzte Woche im Uhle-Hof zusammen. Ihr Ziel: Mehr Klarheit im Dschungel der Bürokratie zu gewinnen, damit die nächsten Vereinsfeste rechtssicher über die Bühne gehen können.

mehr...

19.03.2026

aktuelles-2026-03-marklDie Gemeinde hat bei htp nachgefragt, weil seit Dienstag das Internet und Festnetztelefonie in Marklendorf ausgefallen ist.

mehr...

11.03.2026

aktuelles-2026-03-vera Weniger Bürokratie für das Ehrenamt: Samtgemeinde Schwarmstedt lädt zum Dialog über Veranstaltungsanmeldungen ein - Gemeinsame Lösungen für einfachere Genehmigungsverfahren gesucht

mehr...

11.03.2026

aktuelles-2026-03-ausDie Gemeinde Schwarmstedt hat die Betriebsführung ihrer Kindertagesstätten ausgeschrieben. Die Ausschreibung ist online unter https://ted.europa.eu/de/notice/-/detail/165268-2026 abrufbar.

mehr...

02.03.2026

aktuelles-2026-03-sprechstunde-formularlo Die Formularlotsen sind im März 2026 mit persönlichen Beratungsgesprächen unter vorheriger Terminvereinbarung für Sie da.

mehr...

26.02.2026

aktuelles-2026-02-zahSamtgemeinde präsentiert sich als erste Kommune des Landkreises im Portal der Kassenzahnärztlichen Vereinigung Niedersachsen (KZVN)

mehr...

26.02.2026

bekanntmachung-zweckverband-2026-03-vers Die nächste Sitzung der Zweckverbandsversammlung findet am Dienstag, den 10.03.2026, um 19:00 Uhr, in 29690 SchwarmstedtUhle-Hof Saal, Unter den Eichen 2 statt.  

mehr...

13.02.2026

freiwilligen-aktuelles-2026-02 Die Landesarbeitsgemeinschaft der Freiwilligenagenturen und Koordinierungsstellen für das Ehrenamt in Niedersachsen e.V. (LAGFA) macht auf folgendes Weiterbildungsangebot aufmerksam. Sofern Interesse besteht, bitte die Anmeldungen selbst durchführen.

mehr...

12.02.2026

aktuelles-2026-02-sprechstunde-formularlo Die Formularlotsen sind im Februar 2026 mit persönlichen Beratungsgesprächen unter vorheriger Terminvereinbarung für Sie da.

mehr...

05.02.2026

aktuelles-2026-02-halleBUCHHOLZ (ALLER) - Vorsichtsmaßnahme nach statischer Prüfung: Wegen Rissbildungen an den Dachbindern muss die Sporthalle in Buchholz bis auf Weiteres für den Betrieb geschlossen werden.

mehr...

22.01.2026

aktuelles-2026-01-21-einwNorddrebber. In einer öffentlichen Einwohnerversammlung informierte die Gemeinde Gilten am Montag über Fusion und Gemeindestrukturen. Die vom Niedersächsischen Städte- und Gemeindebund erarbeitete Präsentation können Sie hier auf der Homepage www.schwarmstedt.de frei abrufen.

mehr...

16.01.2026

strassensperrung-2026-01-l163 Im Ortsteil Düshorn der Stadt Walsrode muss im Zuge der Landesstraße 163 ein Durchlass erneuert werden. Der gesperrte Bereich befindet sich zwischen der Kreuzung Bruchweg/Sonnenweg und der Zufahrt zur Hausnummer 27.

mehr...

13.01.2026

aktuelles-2026-01-nachrNachruf auf Jürgen Rinkel: Ein Gestalter mit Herz und Bürgernähe

mehr...

09.01.2026

aktuelles-2026-01-sprechstunde-formularlo Auch im neuen Jahr sind die die Formularlotsen weiterhin mit kostenlosen Sprechstunden für Sie da.

mehr...

08.01.2026

aktuelles-2026-01-appDer Notfall-Monitor Niedersachsen bietet eine Orientierungshilfe in Krisen- und Notfallsituationen. Landesregierung und Kommunen informieren hier zentral über außergewöhnliche Not- und Gefahrensituationen. Zudem finden Sie Informationen zu Warn-Apps und praktische Tipps zur Vorsorge. Er ist www.niedersachsen.de/notfallmonitor/warnseite-223925.htmlabrufbar.

mehr...

08.01.2026

aktuelles-2026-01-unterDer Heidekreis entscheidet über Schulausfälle im Heidekreis.

mehr...

   

Kontakt Rathaus  

Samtgemeinde Schwarmstedt
Am Markt 1
29690 Schwarmstedt

Tel. (05071) 809 - 0
Fax. (0511) 93 69 717 62
E-Mail: rathaus@schwarmstedt.de

thumbnail Feedback, Mängelmeldung
thumbnail Terminbuchung
   

Veranstaltungskalender  

   
   

 

  Samtgemeinde Schwarmstedt

Postfach 1154
29684 Schwarmstedt

Hausanschrift:
Rathaus
Am Markt 1
29690 Schwarmstedt

Vorsprache nur nach Terminvereinbarung

Telefon (Zentrale): 05071/809-0
Telefon (Bürgerbüro): 05071/809-99
E-Mail: rathaus@schwarmstedt.de
Kontakt (Was erledige ich wo?)

Kontodaten der Samtgemeindekasse

Sprechzeiten Bürgerbüro
(Meldeamt, Ausweise/Pässe, Fundbüro, Kfz-Zulassung, Gewerbe/Gaststätten):
Montag, Mittwoch & Freitag 08:30 – 14:00 Uhr
Dienstag & Donnerstag 08:30 – 12:00 Uhr 
  13:00 – 18:30 Uhr


Sprechzeiten Sozialamt
(Bürgergeld, Sozialhilfe, Wohngeld, Asylbewerberleistungen, Unterbringung):
Montag – Freitag, 10:00 – 12:00 Uhr
Donnerstag 16:00 – 18:00 Uhr
   
allgemeine Sprechzeiten:
Montag – Freitag, 08:30 – 12:00 Uhr
Montag – Mittwoch, 13:00 – 15:00 Uhr
Donnerstag 14:00 – 18:00 Uhr
   
 
Impressum Datenschutz Barrierefreiheit Quellenangaben 
Wir benutzen Cookies
Wir nutzen Cookies auf unserer Website. Einige von ihnen sind essenziell für den Betrieb der Seite, während andere uns helfen, diese Website und die Nutzererfahrung zu verbessern (Tracking Cookies). Sie können selbst entscheiden, ob Sie die Cookies zulassen möchten.
Bitte beachten Sie, dass bei einer Ablehnung womöglich nicht mehr alle Funktionalitäten der Seite zur Verfügung stehen.